
Las tarjetas navideñas de Gorriones ya tienen sus diseños
noviembre 1, 2022
Se postergó para el lunes el nuevo juicio al «Pato» Cabrera por violencia de género
noviembre 2, 2022El Club Argentino de Servicio de Hernando es el promotor y seleccionó a la Asociación Gorriones como institución representativa para el proyecto que sigue avanzando a la espera de comenzar con la construcción.
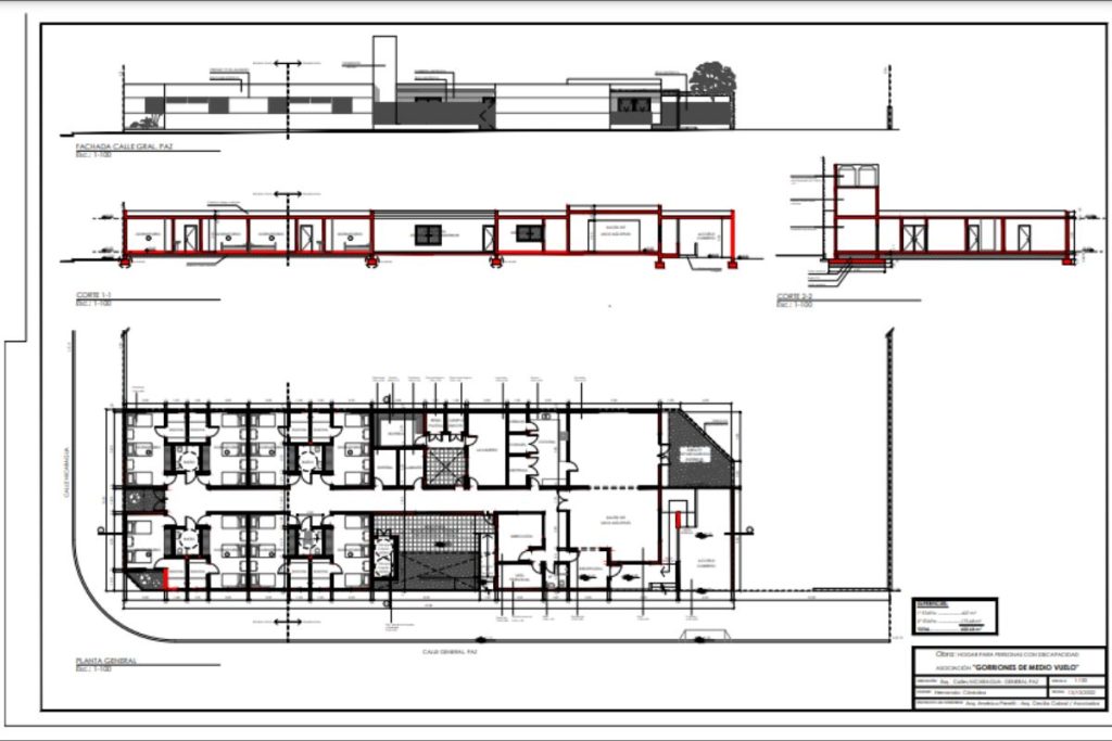
El hogar albergará a toda persona con discapacidad que no cuente con una familia que los contenga por diferentes motivos. El edificio se construirá en el predio del Hospital Municipal, más precisamente en la esquina de Nicaragua y General Paz. Esto permitirá que algunos servicios sean utilizados de manera conjunta, como la cocina, lavadero y asistencia médica.
“Nosotros teníamos el deseo de hacer un hogar, el que dijo que sí fue el Club Argentino de Servicio, ellos son los dueños del proyecto, nosotros somos los beneficiaron y es algo triangular entre el CAS, Gorriones y la Municipalidad de Hernando”, manifestó Lorena Massei, presidenta de la Asociación.
El Arquitecto Américo Peretti, junto a su colega Cecilia Cabral son los responsables de la planificación.
Américo narró que la Municipalidad propuso el predio del Hospital para ver en qué sector era más propicio para ejecutar la obra, “el terreno tiene 14 metros de este a oeste por una necesidad del orden de los 48 metros de norte a sur para el desarrollo”.
La obra no difiere de cualquier vivienda común, como su nombre lo indica es un hogar, con una dimensión de 624 m2. En consecuencia tendrá un estar, comedor, cocina, dependencia de servicios y ocho habitaciones de las cuales 7 con capacidad para tres camas y una para dos. La misma se ejecutará en dos atapas.


Por otra parte se avanzó con la autorización por parte del Área de Discapacidad del Ministerio de Bienestar Social aprobara formalmente el proyecto, la pasada semana el Concejo Deliberante local aprobó por unanimidad la sesión del terreno.
Américo destacó un gesto de Aldo Delcre; “nos ofrecieron construir la obra con un plazo largo y que se pague como se pueda, realmente no sabemos cómo agradecerlo y la sociedad lo debe conocer”.
Este hogar no estará destinado solamente para los asistentes a Gorriones, podrá ser utilizado por toda persona con discapacidad que lo necesite. “Son hogares donde la Justicia puede derivar a personas, es por eso que lo vamos hacer en etapas para tratar de que sea ocupado de acuerdo a la demanda”.
Por último Peretti manifestó sus sentimientos al estar trabajando en este proyecto en particular, “doy gracias a Dios en poder hacerlo y de haberme integrado a Gorriones porque permitió ver muchas necesidades que uno no las conoce ni las ve pasando por la calle. Poder participar junto con Cecilia Cabal a esta altura de mi vida es un premio y se hace con gusto”, cerro.
VIDEO: Entrevista Lorena Massei y Américo Peretti.




